Edifici DePunt

La cooperativa La Torreta va guanyar, el novembre del 2023, el concurs públic de l’Ajuntament d’Igualada per promoure la rehabilitació integral de l’antiga fàbrica DePunt d’Igualada i construir-hi i gestionar 12 habitatges de protecció oficial. Situat a l’avinguda Balmes, l’edifici s’ubica en un entorn propici per al desenvolupament d’un projecte d’habitatge cooperatiu, contribuint a la revitalització del barri i a la reutilització d’espais abandonats.

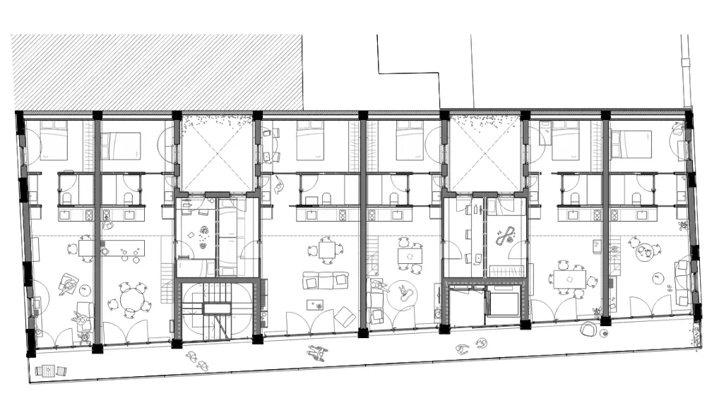
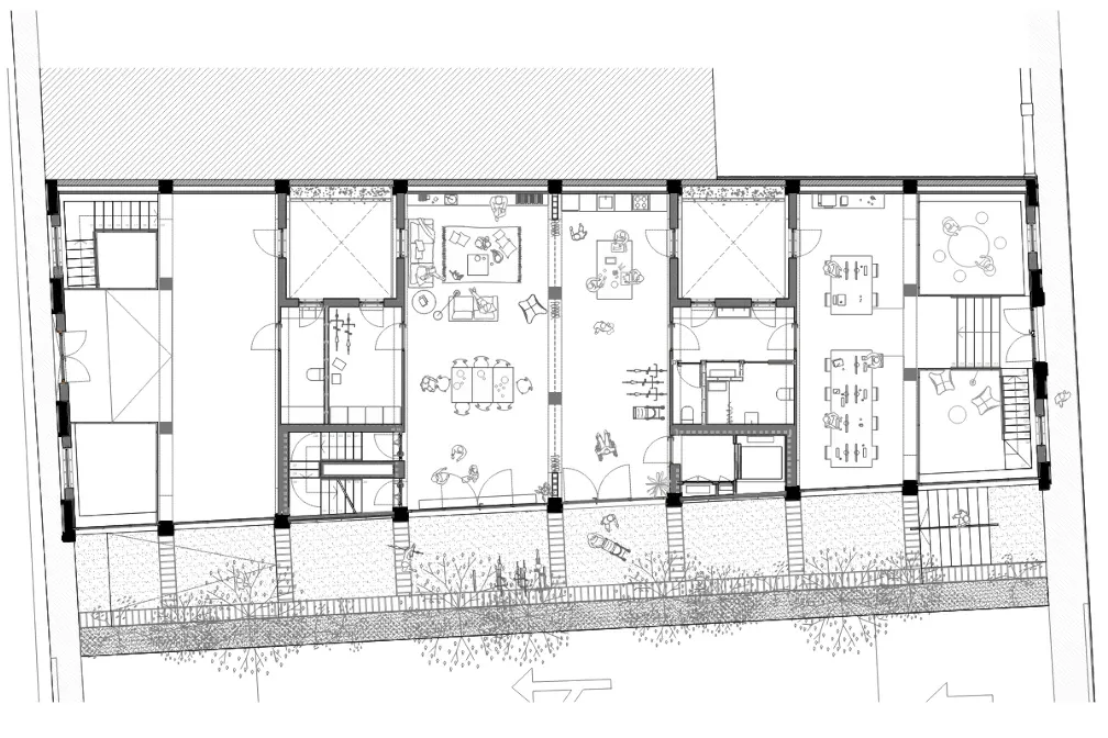
El projecte recupera el caràcter industrial, i alhora singular, de l’edifici Depunt. Es reconeix l’estructura porticada de formigó, base des d’on s’organitza el programa funcional. La planta baixa i soterrani s’ocupa amb espais comunitaris i un local comercial. La planta primera i segona acull un total de 12 habitatges. Aquests es divideixen en dues tipologies: S (1 habitació) i M (2 habitacions). Totes disposen de cuina, bany i sala; així com de climatització i ventilació amb sistemes d’alta eficiència per assolir un major confort.

A la planta baixa s’ha projectat un menjador col·lectiu, un espai polivalent i una àrea de co-treball, disposant així d’uns amplis espais per tal de promoure la convivència comunitària. També es comptarà amb un local comercial a peu de carrer disponible per a lloguer.

Impuls territori 2025

El projecte compta amb la col·laboració de la Fundació PINNAE a través de la convocatòria “Impuls al territori 2025”. Aquesta iniciativa dona suport a les entitats que treballen per millorar les condicions socials, culturals, mediambientals i de salut de les comunitats més vulnerables de l’Alt Penedès, Anoia, Baix Penedès i Garraf.
En concret, l’acció pretén impulsar eines per tal facilitar la incorporació en l’habitatge cooperatiu de col·lectius en situació de vulnerabilitat.